















ID Anunt : P159915
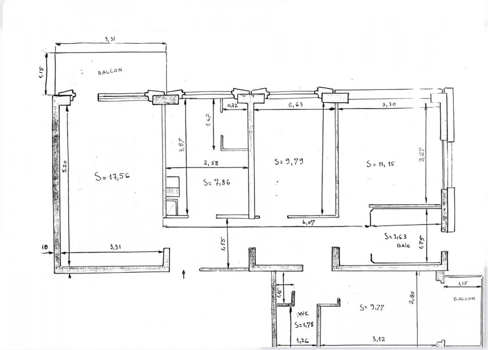
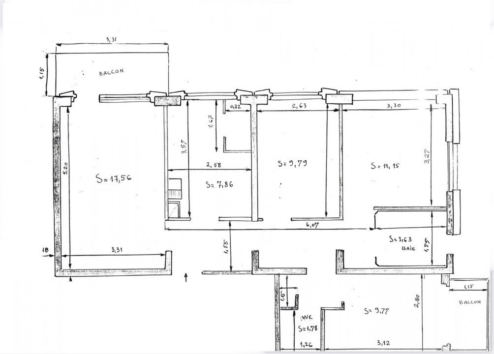
Vă prezentăm un apartament de 4 camere de vânzare în zona Iancului, situat la etajul 2 al unui imobil bine întreținut. Apartamentul se întinde pe o suprafață utilă de 77 mp și este decomandat, oferind o compartimentare practică și eficientă.
Este ideal pentru cei care doresc să-și personalizeze locuința, deoarece necesită renovare, având un potențial mare de transformare. Beneficiază de două băi, ceea ce adaugă un plus de confort, și de două balcoane care permit o iluminare naturală plăcută și o atmosferă aerisită.
Zona Iancului este una foarte căutată, oferind acces rapid la mijloace de transport în comun, magazine, restaurante și alte facilități esențiale. Nu ratați ocazia de a transforma acest apartament într-un cămin pe care să-l adaptați perfect stilului dumneavoastră de viață!