















ID ANUNT: P131322
Atenția la detalii și eleganța sunt două concepte puternic dorite de One Rahmaninov și de noi, cei care am ales să investim în acest proiect exclusivist. Ne-am gândit la nevoile potențiale ale celor mai buni clienți ai noștri, iar din acest motiv, apropierea de lac și, mai presus de toate, priveliștea spre Parcul Verdi, într-o perioadă ca aceasta, ne-au convins că aceasta este cea mai bună opțiune pe care o putem oferi!
Proiectul One Rahmaninov, construit pentru a atinge cele mai înalte standarde de confort și lux din București, îți oferă nu doar un loc de locuit, ci și o experiență, posibilă datorită unui serviciu de concierge disponibil 24/7 într-un lobby luxos și primitor, unde vei fi întotdeauna întâmpinat de cineva gata să aibă grijă de tine și de mașina ta.
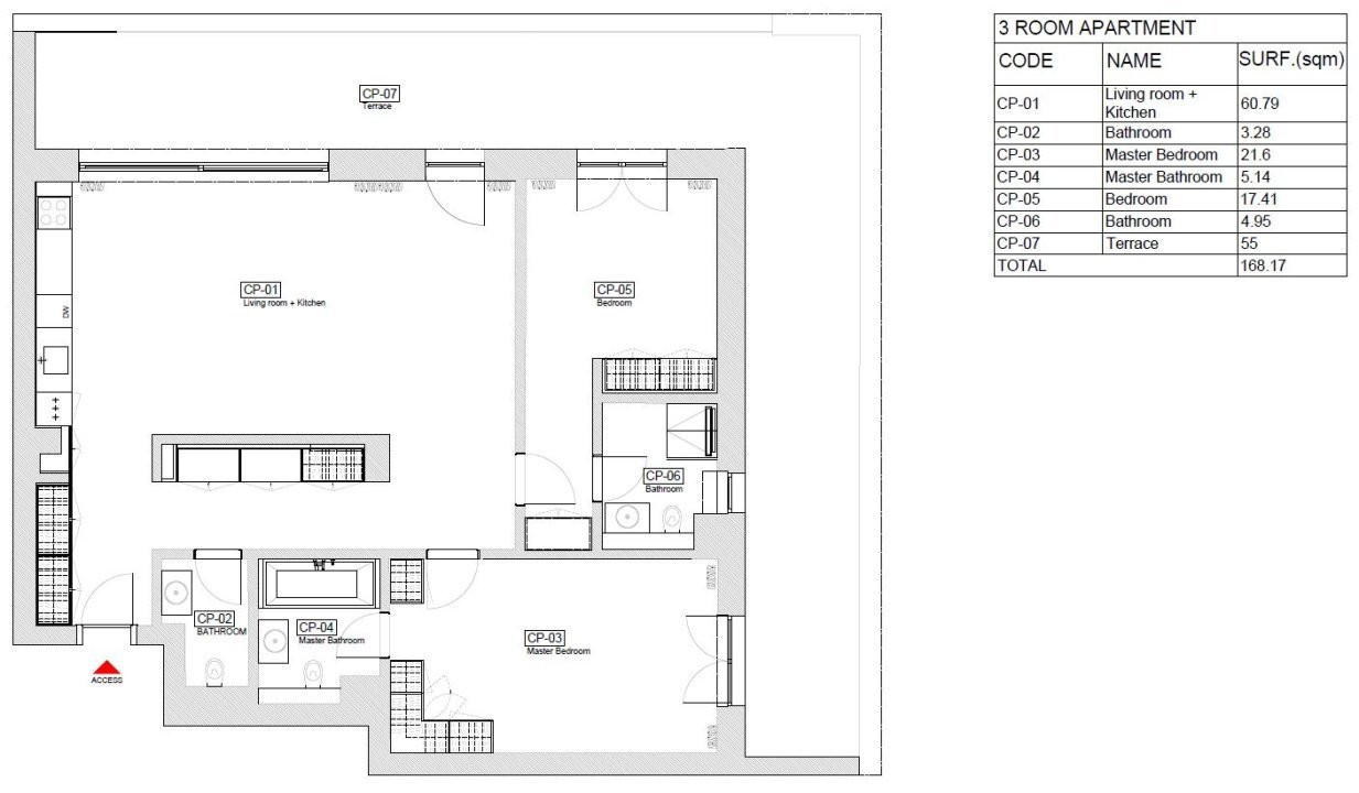
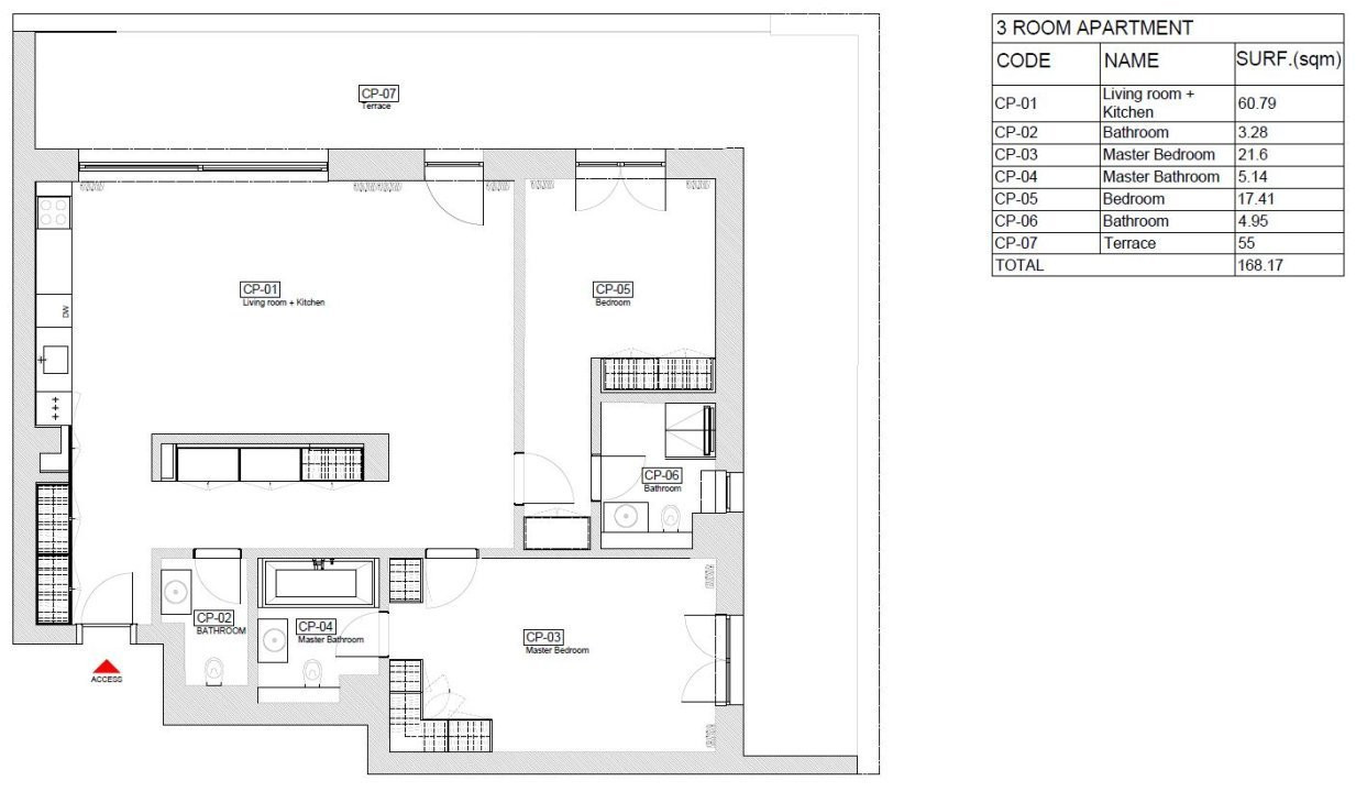
Apartamentul este compartimentat astfel încât să fie dinamic, luminos, spațios și organizat cu atenție. Este complet mobilat, cu o bucătărie complet echipată și dulapuri încorporate.
Caracteristici cheie:
Priveliște spre parc cu o terasă privată de 55 mp și multă lumină naturală
Înălțimea tavanului de 3 m
Uși interioare Filomuro
Sistem de încălzire în pardoseală REHAU
Sistem de răcire în tavan REHAU
Bucătărie complet echipată
Dulapuri încorporate
3 băi
Parcare subterană